春天华府166m² 高级灰遇上冷金属
铭品装饰(城西分店)
1.案位于临安市区苕溪河畔,家庭成员夫妻俩和一个儿子,朋友介绍的夫妻俩性格随和友善,要求房子装修简洁。(比如:职业或身份背景、家居偏好及特殊要求、与业主之间的有趣小故事) 2.房子是顶楼,考虑到采光好,设计时就构思了一个在阳台上的敞开式书房,终于客户也满意这个区域。公共空间上还是以贯通户型的方式增加家庭的互动。(简单总结本作品的基本思路) 3.拆除了原先客厅笨重的双开移门,升高了门洞,改成窄边折叠玻璃门,这样客厅的采光就用好顶楼露台装修效果图,空间也延伸扩大。(比如:空间布局/户型改造、色彩设计、功能性、较有特色的选材及搭配等等)
10秒估算装修报价
玄关

本户是在楼顶,所以在色彩上面可以大胆的用灰色调,营造出高冷冷艳的即时感。
其他

主色调高级灰,金边条材质实用增加质感非常好看。
客厅

米色白色沙发,黑色及金边茶几,装饰画搭配都经过设计师之手,画面感协调舒适。

佰富彩客厅未设置主灯,整个空间小灯为主,光源变化多。

小设计,电视背景墙大理石+金边框,体现质感。

佰富彩同样的视角,灯光不一样也给人不一样的感受。灯光下空间显的暖暖的。
餐厅

厨房吧台设计,满足业主下厨时制作美味食物提供好场所。
佰富彩餐厅美食传递的地方,温暖胃温暖家。餐边背景与电视背景墙一致。
书房

书桌边上有个斜角放置书本顶楼露台装修效果图佰富彩,真的是小小办公也藏着小细节噢。
卧室

卧室橙色搭配灰色,没做对应的射灯,直接一个羽毛主灯搭配,空间显得很干净清爽。
卫生间

佰富彩卫生间黑白灰搭配金属系,空间感十足。简单而清爽。
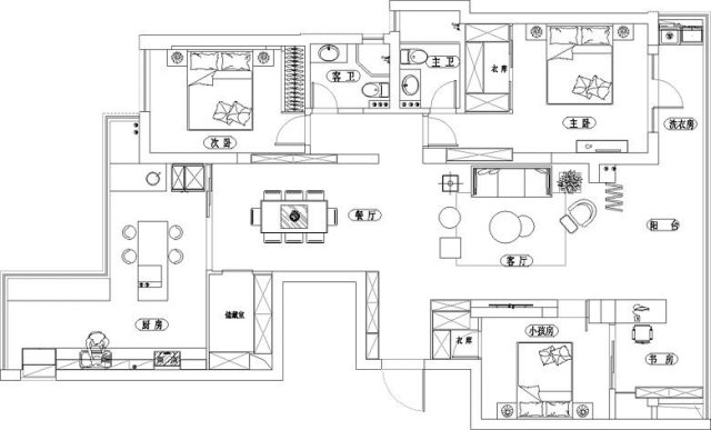
户型图

改善型住房需要的就是居住的舒适型,所以在保证需求的前提下。尽量的将能够提高居住舒适性的地方尽量的放大,让居住更舒心。

佰富彩1.超大的厨房,独立吧台,享受生活。 2.隔出的单独的餐厅,吃饭充满仪式感。 3.南面阳台未做任何的隔断,联通小孩房和书房,通透。 4.客厅与阳台仅用折叠门相隔,满足不同的功能需要。
现代案例
三居室案例
165平米案例
以上内容由用户投稿,佰富彩进行整理发布,希望对大家有所帮助,如有侵权,请联系我们进行删除。